Дом по адресу Новосибирск, Мошковский район, за 7499000 р.

Адрес Новосибирск, Мошковский район, поселок Октябрьский, Сибирская улица
Цена 7 499 000 р.
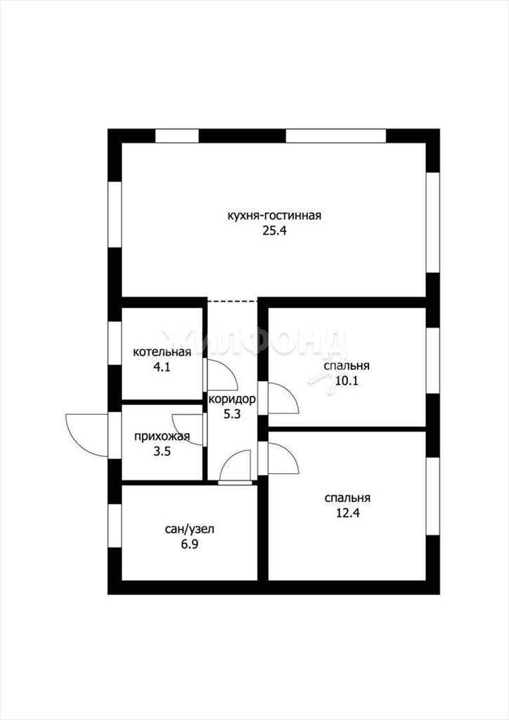
Площадь дома 72,8 м2, участка 6,9 м2
Дом по ул. Сибирская (КП Рябиновый) . Общей площадью: 72.80 кв.м. Возможна ипотека , в т.ч. СЕЛЬСКАЯ 3! Площадь земельного участка 7 соток! Мечтаете о чистом воздухе? Коттеджный посёлок Рябиновый -5,5 км. от города, 25 минут езды от пл. Калинина. Комфорт и близость к городу, прекрасные дороги и замечательные соседи- здесь Вам всё это гарантированно! ! Предлагаем Вашему вниманию прекрасный, теплый дом площадью 72,8 кв.м. из сибита толщиной 400 мм, который строился очень тщательно для себя, с проработкой каждого строительного узла. - Фундамент ленточный, армированный 1200 мм + фундаментная плита 400 мм. (Такое основание выдержит 5 этажный дом. ) Не лопнет не загуляет, отстоялся более 1 года. - Крыша покрыта профнастил, цвет графит, толщина 0.5 мм. - Водопровод центральный, коммуникации заведены в дом и подключены. Коллекторная разводка воды. - Электричество с максимальной входной мощностью до 15 кВт. , выдаёт устойчивое напряжение 220В. - Потолок утеплен 300 мм, и обшит плитами ОSB. - Окна вставлены кашированные с мультифункциональным стеклом(не пропускает ультрафиолет) . Сделана разводка коммуникаций по мокрым точкам и залит теплый пол по всему дому, так же залита полусухая стяжка. Проект дома: 2 изолированные комнаты, большая кухня-гостиная 25,4 кв. м с огромными распашными дверьми в пол с выходом во двор, 1 санузел и вместительная гардеробная. (Так же имеется отдельная бойлерная) . Посёлок огорожен, на въезде-охрана. Дороги широкие, - асфальт. Назначение земель- ИЖС( индивидуальное жилищное строительство) . В поселке предусмотрено строительство школы и детского сада. В подарок новым жильцам идет дизайн-проект дома! Звоните, готовы показать ваш дом мечты в удобное для вас время! Подходит под все виды расчета! Возможен обмен на вашу недвижимость. Возможна продажа в рассрочку. При звонке, пожалуйста, сообщите номер варианта - JV008054156663
Объявление № 23456274
Дата подачи:
22 октября 2025 г. 0:28
Дата обновления:
22 октября 2025 г. 0:28
Просмотров 10 Хотите продать быстрее?

Продавец
Анастасия Игоревна
Показать номер телефона
Пожаловаться
Комментарии:
Добавить